(941) 592-3433
Sign Up Login
$764,995

Paul Morris Drive Englewood, FL 34223 Land - Commercial Active

  • Paul Morris Drive, Englewood, FL 34223 Main Photo

15 Total Photos [Click to View All]

Description

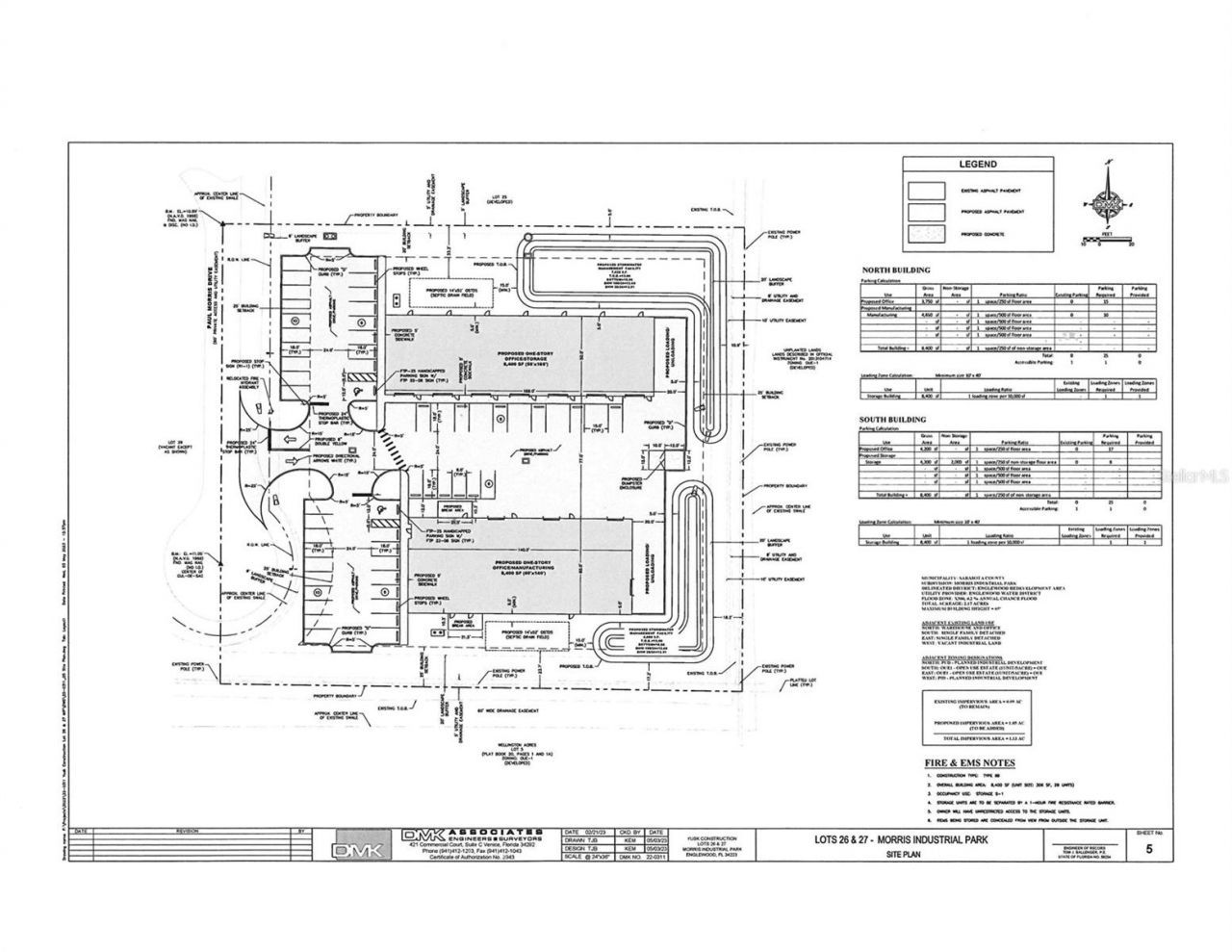
2-acre industrial development opportunity in Morris Industrial Park with a full set of building plans included and permitting achievable in approximately 30-45 days. Skip the 18-24 months of engineering, environmental studies, and design work and move straight toward construction. The approved site plan features two one-story buildings, each approximately 8,400 square feet. The north building is 50' x 168' and designed for seven RV or storage units, while the south building is 60' x 140' and designed for office and light manufacturing use. Environmental studies are available, and full engineering and site planning have already been completed. Located off River Road with direct access to US-41 and I-75 in a high-demand industrial corridor. This is a permit-ready project that saves significant time and money for investors or owner-users looking to fast-track development.

Property Highlights

Property Type: Land - Commercial
Lot Size: 2.00 Acres
Taxes: $3,655

General Information

County: Sarasota
Subdivision: MORRIS INDUST PARK
Listed By:
Fran Colosimo PARADISE EXCLUSIVE INC 941-698-0303

Property Features

Days on Site: 146
Directions: From River Road take Paul Morris Drive. The property is down on your left at end of the cul-de-sac.
Flood Zone Code: AE
Home Warranty Y/N: No
Listing Terms: Cash, Conventional
Lot: Cul-De-Sac, In County, Industrial Park, Paved
Lot Dimensions: 2
Ownership: Fee Simple
Property Attached Y/N: No
Sewer: Public Sewer
Showing Instructions: Call Listing Agent, Go Direct
Special Sale Provisions: None
Utilities: Electricity Available, Mini Sewer, Sewer Available, Water Available
Water: Public
Water Access Y/N: No
Zoning: PID
$764,995
Active
LOT SIZE 2.000 acres MLS#D6144140
STATUSActive PROPERTY TYPELand - Commercial SUBDIVISIONMORRIS INDUST PARK

Get in Touch

Contact an agent to learn more about

Paul Morris Drive, Englewood, FL 34223.

Contact Form

Preferred Communication Method:

Estimate Your Payment

Estimated Payment

$ 3,107.91 per month $2,580.20 Principal & Interest $304.58 Property Tax $223.12 Homeowner's Insurance

Change Payment Information

%
years/fixed
yearly
yearly (est.)
(Payments are an estimate and may vary by lender)

About this area

Florida/Englewood
Englewood

View Listings

About Englewood

Englewood is located south of Sarasota, and north of Venice. This community offers a wide variety of home styles and price ranges. It’s tucked away, yet still provides easy access to the arts and cultural amenities that make this area so popular. Nature is abundant, and with a strong school system, it’s also great place for families. One of the highlights in Englewood is Manasota Key Road. It boasts luxurious properties that are Gulf- front on one side and bay-front on the other.


Learn More About Living in Englewood, Florida

About this community

Disclaimer: All information deemed reliable but not guaranteed. All properties are subject to prior sale, change or withdrawal. Neither listing broker(s) or information provider(s) shall be responsible for any typographical errors, misinformation, misprints and shall be held totally harmless. Listing(s) information is provided for consumers personal, non-commercial use and may not be used for any purpose other than to identify prospective properties consumers may be interested in purchasing. Information on this site was last updated 03/03/2026. The listing information on this page last changed on 03/03/2026. The data relating to real estate for sale on this website comes in part from the Internet Data Exchange program of Delta Media Group MLS (last updated Tue 03/03/2026 12:02:44 AM EST) or Stellar MLS (last updated Mon 03/02/2026 11:44:09 PM EST). Real estate listings held by brokerage firms other than Wagner Realty may be marked with the Internet Data Exchange logo and detailed information about those properties will include the name of the listing broker(s) when required by the MLS. All rights reserved.

Listing data and photos distributed by MLSGRID
Member Participants (and their affiliated licensees, if applicable) shall indicate on their websites that IDX information is provided exclusively for consumers’ personal non-commercial use, that it may not be used for any purpose other than to identify prospective properties consumers may be interested in purchasing, that the data is deemed reliable but is not guaranteed by MLS GRID, and that the use of the MLS GRID Data may be subject to an end user license agreement prescribed by the Member Participant’s applicable MLS if any and as amended from time to time. MLS GRID may, at its discretion, require use of other disclaimers as necessary to protect Member Participant, and/or their MLS from liability.
Based on information submitted to the MLS GRID. All data is obtained from various sources and may not have been verified by broker or MLS GRID. Supplied Open House Information is subject to change without notice. All information should be independently reviewed and verified for accuracy. Properties may or may not be listed by the office/agent presenting the information.



Privacy Policy / DMCA Notice / ADA Accessibility

Login to My Homefinder

Pixel