(941) 592-3433
Sign Up Login
Refine Search
$329,597

8116 Saint Kitts Circle Englewood, FL 34224 Residential - Single Family Active

  • 8116 Saint Kitts Circle, Englewood, FL 34224 Main Photo

2 Total Photos [Click to View All]

Description

Coastal living meets modern comfort in this stunning, newly constructed home with serene water views. Situated in a gated, master-planned community just 6 miles from the beach and located in the sought-after X flood zone, this residence offers a perfect blend of style, convenience, and peace of mind.Designed for low-maintenance living, the community offers resort-style amenities, including a pool, fitness center, clubhouse, playground, and pickleball courts. Inside, the bright and open floor plan showcases tile flooring throughout, crisp white cabinetry, quartz countertops, and impact windows. The well-appointed kitchen features a large center island, walk-in pantry, and a full appliance package, making it ideal for both entertaining and everyday living.A thoughtful split-bedroom layout provides privacy and flexibility, with a spacious primary suite offering a walk-in shower and generous closet space. A secondary bedroom includes an en suite bath-ideal for guests or multigenerational living. Enjoy Florida's outdoor lifestyle from the screened, pavered lanai, where peaceful lake views create a relaxing backdrop. Additional conveniences include washer, dryer, window blinds, and lawn care, making this home truly move-in ready.An exceptional opportunity to enjoy effortless coastal living in a prime location.

Property Highlights

Property Type: Residential - Single Family
Cooling: Central Air
Garage: 2 car attached
Heating: Central
Lot Size: 0.16 Acres
Roof Type: Shingle
Stories: 1.0
Taxes: $2,396
Year Built: 2026

General Information

Bedrooms: 3
Bathrooms: 3 Full
Sqft: 1,849
County: Charlotte
Subdivision: ISLAND LKS/COCO BAY
Listed By:
Shirah Knight HOMESMART 407-476-0451

Amenities

In Wall Pest System
Open Floorplan
Smart Home
Stone Counters
Thermostat
Walk-In Closet(s)
Window Treatments
Private Yard
Sliding Doors

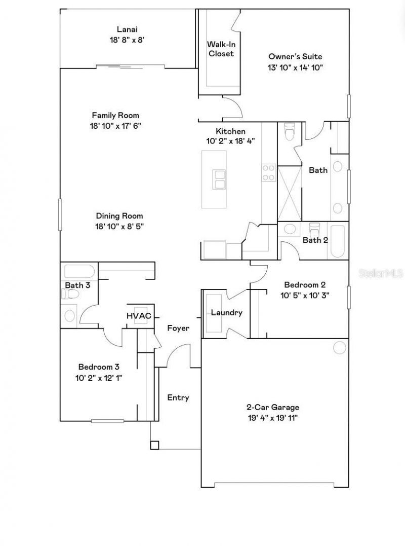
Room Information

Kitchen: 10x18
Dining Room: 19x8.5
Living Room: 19x17.5
Primary Bedroom: 13.75x14.75
Bedroom 2: 10.5x10
Bedroom 3: 10x12

Property Features

Appliances: Dishwasher, Disposal, Dryer, Electric Water Heater, Ice Maker, Microwave, Range, Washer
Association Amenities: Pickleball Court(s)
Community Features: Clubhouse, Community Mailbox, Fitness Center, Gated Community - No Guard, Irrigation-Reclaimed Water, Playground, Pool, Sidewalks, Street Lights
Days on Site: 24
Directions: Placida Road (775) to Coco Bay Blvd, Right on Waterscape Road, Right on Saint Kitts Circle to home on right.
Exterior: Block, Stucco
Flood Zone Code: X500
Flooring: Tile
Foundation: Slab
HOA Fee: 908/ Quarterly
HOA Y/N: Yes
Home Warranty Y/N: No
Listing Terms: Cash, Conventional, FHA, VA Loan
Lot Dimensions: 0.16
Number of Pets: 3
Other Equipment: Irrigation Equipment, Private Yard
Ownership: Fee Simple
Pets Allowed: Yes
Property Attached Y/N: No
Property Sub-Type: Single Family Residence
Sewer: Public Sewer
Showing Instructions: Call Listing Agent
Special Sale Provisions: None
Utilities: Cable Connected, Electricity Connected, Phone Available, Public, Sewer Connected, Sprinkler Recycled, Water Connected
Water: Public
Water Access Y/N: No
Zoning: RMF3.5
$329,597
3beds
3.0baths
1,849sqft
2cars
Active
BEDS3 BATHS3 full SQUARE FEET1,849 MLS#D6145981
STATUSActive PROPERTY TYPEResidential - Single Family SUBDIVISIONISLAND LKS/COCO BAY

Get in Touch

Contact an agent to learn more about

8116 Saint Kitts Circle, Englewood, FL 34224.

Contact Form

Preferred Communication Method:

Estimate Your Payment

Estimated Payment

$ 1,407.48 per month $1,111.68 Principal & Interest $199.67 Property Tax $96.13 Homeowner's Insurance

Change Payment Information

%
years/fixed
yearly
yearly (est.)
(Payments are an estimate and may vary by lender)

About this area

Florida/Englewood
Englewood

View Listings

About Englewood

Englewood is located south of Sarasota, and north of Venice. This community offers a wide variety of home styles and price ranges. It’s tucked away, yet still provides easy access to the arts and cultural amenities that make this area so popular. Nature is abundant, and with a strong school system, it’s also great place for families. One of the highlights in Englewood is Manasota Key Road. It boasts luxurious properties that are Gulf- front on one side and bay-front on the other.


Learn More About Living in Englewood, Florida

About this community

Disclaimer: All information deemed reliable but not guaranteed. All properties are subject to prior sale, change or withdrawal. Neither listing broker(s) or information provider(s) shall be responsible for any typographical errors, misinformation, misprints and shall be held totally harmless. Listing(s) information is provided for consumers personal, non-commercial use and may not be used for any purpose other than to identify prospective properties consumers may be interested in purchasing. Information on this site was last updated 03/03/2026. The listing information on this page last changed on 03/03/2026. The data relating to real estate for sale on this website comes in part from the Internet Data Exchange program of Delta Media Group MLS (last updated Tue 03/03/2026 12:02:44 AM EST) or Stellar MLS (last updated Mon 03/02/2026 11:44:09 PM EST). Real estate listings held by brokerage firms other than Wagner Realty may be marked with the Internet Data Exchange logo and detailed information about those properties will include the name of the listing broker(s) when required by the MLS. All rights reserved.

Listing data and photos distributed by MLSGRID
Member Participants (and their affiliated licensees, if applicable) shall indicate on their websites that IDX information is provided exclusively for consumers’ personal non-commercial use, that it may not be used for any purpose other than to identify prospective properties consumers may be interested in purchasing, that the data is deemed reliable but is not guaranteed by MLS GRID, and that the use of the MLS GRID Data may be subject to an end user license agreement prescribed by the Member Participant’s applicable MLS if any and as amended from time to time. MLS GRID may, at its discretion, require use of other disclaimers as necessary to protect Member Participant, and/or their MLS from liability.
Based on information submitted to the MLS GRID. All data is obtained from various sources and may not have been verified by broker or MLS GRID. Supplied Open House Information is subject to change without notice. All information should be independently reviewed and verified for accuracy. Properties may or may not be listed by the office/agent presenting the information.



Privacy Policy / DMCA Notice / ADA Accessibility

Login to My Homefinder

Pixel