(941) 592-3433
Sign Up Login
Refine Search
$260,000

11881 SW 45th Street Webster, FL 33597 Residential - Mobile Home Active

  • 11881 SW 45th Street, Webster, FL 33597 Main Photo

27 Total Photos [Click to View All]

Description

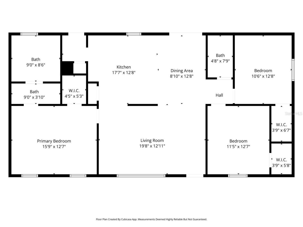
Welcome to your own private retreat! This spacious 3-bedroom, 1.5-bath double-wide home sits on approximately 6.03 acres, offering the perfect blend of peaceful country living with convenient access to nearby amenities. Inside, you'll love the desirable split floor plan, providing added privacy for the primary bedroom. All three bedrooms feature walk-in closets, giving everyone plenty of storage space. Recent improvements, per the seller, include new plumbing installed in 2021, a water softener added in 2021, a new well and AC with heat pump installed in 2024, adding peace of mind for the next owner. Step outside and enjoy the wide-open space-ideal for gardening, animals, recreational vehicles, or simply soaking in the natural surroundings. The property is mostly fenced and features a gated entrance for added privacy. A shed purchased in 2025 offers excellent additional storage for tools and equipment. Enjoy the convenience of being just minutes from I-75, US 301, and SR 50, making travel to Orlando, Tampa, and Ocala easy and efficient. You'll also appreciate being close to medical offices, shopping, and restaurants while still enjoying a rural setting. Outdoor enthusiasts will love having the Withlacoochee River nearby, along with access to Hog Island for fishing, boating, and exploring. If you've been searching for acreage, privacy, and convenience all in one property, this could be the one!

Property Highlights

Property Type: Residential - Mobile Home
Cooling: Central Air
Fenced: Yes
Heating: Central
Lot Size: 6.03 Acres
Roof Type: Shingle
Stories: 1.0
Taxes: $1,175
Year Built: 1997

General Information

Bedrooms: 3
Bathrooms: 1 Full 1 Half
Sqft: 1,352
County: Sumter
Subdivision: NONE
Listed By:
Nicole Tucci CENTURY 21 PRIME PROPERTY RESOURCES INC 352-793-6911

Amenities

Ceiling Fans(s)
Split Bedroom
Thermostat
Walk-In Closet(s)
Sliding Doors
Storage

Property Features

Appliances: Range, Range Hood, Refrigerator, Water Softener
Days on Site: 7
Directions: Take US-301 S approximately 6.1 miles, then turn right onto County Road 656. Go approximately 1.6 miles, then turn right onto SW 45th St. Go to the end of the road. Look for the Century 21 sign.
Exterior: Vinyl Siding
Fencing: Wire
Flood Zone Code: A
Flooring: Carpet, Vinyl
Foundation: Crawlspace
Home Warranty Y/N: No
Listing Terms: Cash, Conventional
Lot: FloodZone, In County, Street Dead-End, Unpaved
Lot Dimensions: 6.03
Other Structures: Shed(s), Storage
Ownership: Fee Simple
Property Attached Y/N: No
Property Sub-Type: Manufactured Home
Security: Security System
Sewer: Septic Tank
Showing Instructions: 24 Hour Notice, Appointment Only, Call Listing Agent 2,Lockbox, See Remarks, ShowingTime
Special Sale Provisions: None
Utilities: BB/HS Internet Available, Electricity Connected
Water: Well
Water Access Y/N: No
Zoning: RR5
$260,000
3beds
1.5baths
1,352sqft
Active
BEDS3 BATHS1 full 1 partial SQUARE FEET1,352 MLS#G5108543
STATUSActive PROPERTY TYPEResidential - Mobile Home SUBDIVISIONNONE

Get in Touch

Contact an agent to learn more about

11881 SW 45th Street, Webster, FL 33597.

Contact Form

Preferred Communication Method:

Estimate Your Payment

Estimated Payment

$ 1,050.69 per month $876.94 Principal & Interest $97.92 Property Tax $75.83 Homeowner's Insurance

Change Payment Information

%
years/fixed
yearly
yearly (est.)
(Payments are an estimate and may vary by lender)
Disclaimer: All information deemed reliable but not guaranteed. All properties are subject to prior sale, change or withdrawal. Neither listing broker(s) or information provider(s) shall be responsible for any typographical errors, misinformation, misprints and shall be held totally harmless. Listing(s) information is provided for consumers personal, non-commercial use and may not be used for any purpose other than to identify prospective properties consumers may be interested in purchasing. Information on this site was last updated 03/03/2026. The listing information on this page last changed on 03/03/2026. The data relating to real estate for sale on this website comes in part from the Internet Data Exchange program of Delta Media Group MLS (last updated Tue 03/03/2026 12:02:44 AM EST) or Stellar MLS (last updated Mon 03/02/2026 11:44:09 PM EST). Real estate listings held by brokerage firms other than Wagner Realty may be marked with the Internet Data Exchange logo and detailed information about those properties will include the name of the listing broker(s) when required by the MLS. All rights reserved.

Listing data and photos distributed by MLSGRID
Member Participants (and their affiliated licensees, if applicable) shall indicate on their websites that IDX information is provided exclusively for consumers’ personal non-commercial use, that it may not be used for any purpose other than to identify prospective properties consumers may be interested in purchasing, that the data is deemed reliable but is not guaranteed by MLS GRID, and that the use of the MLS GRID Data may be subject to an end user license agreement prescribed by the Member Participant’s applicable MLS if any and as amended from time to time. MLS GRID may, at its discretion, require use of other disclaimers as necessary to protect Member Participant, and/or their MLS from liability.
Based on information submitted to the MLS GRID. All data is obtained from various sources and may not have been verified by broker or MLS GRID. Supplied Open House Information is subject to change without notice. All information should be independently reviewed and verified for accuracy. Properties may or may not be listed by the office/agent presenting the information.



Privacy Policy / DMCA Notice / ADA Accessibility

Login to My Homefinder

Pixel