(941) 592-3433
Sign Up Login
$1,499,999

1091 Lampp Drive Englewood, FL 34223 Residential - Single Family Active

  • 1091 Lampp Drive, Englewood, FL 34223 Main Photo

65 Total Photos [Click to View All]

Description

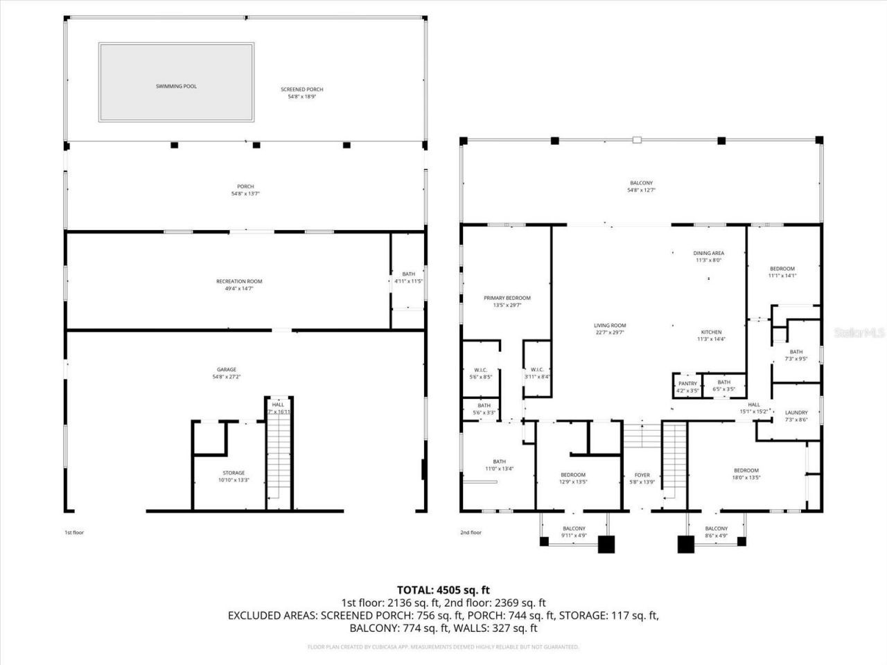
Welcome to an exceptional newly constructed 2025 waterfront estate offering a rare blend of luxury, land, and boating access. Situated on 2.50 acres along Rock Creek/Ainger Creek, this property delivers something almost unheard of-acreage with public water and public sewer, combining privacy and freedom with modern infrastructure. Site preparation included lot clearing and over 200 loads of fill, ensuring durability and elevation. Boaters will appreciate a NEW private dock and boat lift scheduled for completion in six months, featuring approximately 180 sq ft of TimberTech/Azek decking and a dual jet ski Easy Dock. This two-story home showcases superior construction with a three-course stem wall, concrete block first-floor construction with smooth stucco inside and out, 2x6 second-floor framing, Hardie Board siding and soffits, aluminum railings, and a 24-gauge standing seam metal roof. Impact protection includes PGT vinyl impact windows, doors, and sliders, along with Clopay insulated impact garage doors. A designated cut-out with doors from the first-floor garage to the second-floor living area provides buyers the option to install an elevator or dumbwaiter. Inside, the home features 4 bedrooms, 3.5 bathrooms, and a split floor plan offering an open-concept living, dining, and kitchen area. Tray and vaulted ceilings enhance light and volume throughout. The first floor features epoxy flooring, while the second floor has luxury vinyl plank. The kitchen is finished with quartz countertops and backsplash, GE appliances, and a 36 six-burner gas range. Kohler fixtures are throughout, with ClosetMaid organizers in all bedroom closets and wire shelving in pantries, laundry, and bathrooms. Efficiency include an open-cell spray foam insulation, R-11 sound insulation in interior walls, vapor-shielded concrete walls, 400-amp electrical service, a 500-gallon propane tank, Rinnai tankless water heater, water softener, reverse-osmosis drinking system, PEX and PVC plumbing, and LED lighting inside and out. Climate control features a 4-ton Trane HVAC system with advanced air filtration upstairs and a two-head Daikin mini-split downstairs. Outdoor living with porcelain-tiled balconies, entry porch, and second-floor lanai, all enclosed below with wood and stucco finishes. The impressive two-story Mansford screened enclosure features picture windows and no-see-um screens, overlooking a gunite saltwater pool and spa with Pentair equipment, heater, and chiller. The expansive concrete pool deck offers sun and shade. Enjoy being just a 12-minute boat ride to the Placida Road boat launch. A standout feature is the four-car garage fully under air, offering flexibility. Behind the garage is a large bonus room with full bathroom and direct access to the lanai and pool-ideal for an in-law suite, entertainment space, gym, or additional bedrooms. The property is zoned to allow two single-family homes, with the option to build a second residence across from the main home-an incredible opportunity for multigenerational living or future investment. Sellers are also installing a private irrigation well. Despite the serene setting, the home is minutes from Englewood and Boca Grande beaches, downtown Englewood, shopping, dining, and medical facilities. Enjoy waterfront acreage living without sacrificing convenience-this is Florida luxury at its finest.

Property Highlights

Property Type: Residential - Single Family
Cooling: Central Air
Garage: 4 car attached
Heating: Central, Electric
Home Style: Coastal, Custom, Elevated, Key West
Lot Size: 2.50 Acres
Roof Type: Metal
Stories: 2.0
Taxes: $5,012
Year Built: 2025

General Information

Bedrooms: 4
Bathrooms: 3 Full 1 Half
Sqft: 3,245
County: Charlotte
High School: Lemon Bay High
Subdivision: ENGLEWOOD SOUTH
Listed By:
Christie-Elyse Turbiville RE/MAX PALM REALTY 941-743-5525

Amenities

Built-in Features
Dumbwaiter
Eat-in Kitchen
Elevator
High Ceilings
In Wall Pest System
Kitchen/Family Room Combo
Living Room/Dining Room Combo
Open Floorplan
Other
PrimaryBedroom Upstairs
Solid Wood Cabinets
Split Bedroom
Stone Counters
Thermostat
Tray Ceiling(s)
Vaulted Ceiling(s)
Walk-In Closet(s)
Balcony
Lighting
Other
Private Entrance
Private Yard
Rain Gutters
Sliding Doors
Storage

Room Information

Living Room: 23x30
Kitchen: 11x14.5
Dining Room: 11x8
Primary Bedroom: 13.5x30
Primary Bathroom: 11x13.5
Bedroom 2: 13x13.5
Bathroom 2: 6.5x3.5
Bedroom 3: 18x13.5
Bathroom 3: 7.5x9.5
Bedroom 4: 11x14
Balcony/Porch/Lanai: 55x13
Laundry: 7.5x8.6
Foyer: 6x14
Bathroom 4: 5x11.5
Bonus Room: 49.5x15

Property Features

Accessibility Features: Accessible Doors
Additional Rooms: Attic, Bonus Room, Inside Utility, Storage Rooms
Appliances: Convection Oven, Disposal, Dryer, Exhaust Fan, Gas Water Heater, Ice Maker, Kitchen Reverse Osmosis System, Microwave, Other, Range, Range Hood, Refrigerator, Tankless Water Heater, Washer, Water Filtration System, Water Purifier, Water Softener
Barn Features: None
Body of Water: ROCK CREEK/ AINGER CREEK
Builder: Owner Builder
Days on Site: 106
Directions: From South McCall Road, turn onto Pine Street. Proceed to East Seventh Street and turn right. East Seventh Street curves left and becomes Manor Road. Continue to the end of Manor Road and turn right onto Eighth Street. Follow Eighth Street to the stop sig
Disaster Mitigation: Fire/Smoke Detection Integration, Hurricane Shutters/Windows
Exterior: Block, Cement Siding, Stucco, Frame
Flood Zone Code: AE
Flooring: Luxury Vinyl
Foundation: Slab, Stem Wall
Frontage Canal Brackish: 208
Frontage Canal Salt: 208
Garage Dimensions: 29x55
Home Warranty Y/N: No
Horse Amenities: None
Listing Terms: Cash, Conventional, VA Loan
Lot: Cleared, Cul-De-Sac, In County, Irregular Lot, Key Lot, Landscaped, Level, Near Golf Course, Near Marina, Near Public Transit, Oversized Lot, Street Dead-End, Paved
Lot Dimensions: 2.5
Number of Pets: 10+
Number of Wells: 1
Other Equipment: Irrigation Equipment, Private Entrance, Private Yard
Ownership: Fee Simple
Parking: Boat, Circular Driveway, Common, Covered, Driveway, Garage Door Opener, Ground Level, Guest, Off Street, On Street, Other, Oversized, Parking Pad, RV Access/Parking, Garage, Basement, Workshop in Garage
Parking Notes: Boat, Circular Driveway, Common, Covered, Driveway, Gar
Patio/Porch: Covered, Deck, Enclosed, Other, Porch, Rear Porch, Screened
Pets Allowed: Yes
Pets Restrictions: As per Charlotte County rules and regulations.
Pets Size: Extra Large (101+ Lbs.)
Pool: Chlorine Free, Deck, Gunite, Heated, In Ground, Lighting, Other, Salt Water, Screen Enclosure, Tile
Property Attached Y/N: No
Property Sub-Type: Single Family Residence
Security: Smoke Detector(s)
Sewer: Public Sewer
Showing Instructions: 24 Hour Notice, Appointment Only, Call Before Showing, Call Listing Agent, Listing Agent Must Accompany, See Remarks, ShowingTime
Spa: Heated, In Ground, Other, Swim Spa
Special Sale Provisions: None
Special View Info: Water
Swimming Pool: Yes
Utilities: BB/HS Internet Available, Cable Available, Electricity Connected, Other, Phone Available, Private, Propane, Public, Sewer Connected, Water Connected
Vegetation: Trees/Landscaped, Wooded
Water: Public, Well
Water Access: Canal - Brackish, Canal - Saltwater, Creek
Water Access Y/N: Yes
Waterfront Features: Canal - Brackish, Canal - Saltwater, Creek, Minimum Wake Zone, No Wake Zone
Water View: Canal, Creek
Windows: Storm Window(s)
Zoning: RSF5
$1,499,999
4beds
3.5baths
3,245sqft
4cars
Active
BEDS4 BATHS3 full 1 partial SQUARE FEET3,245 MLS#C7519605
STATUSActive PROPERTY TYPEResidential - Single Family SUBDIVISIONENGLEWOOD SOUTH

Get in Touch

Contact an agent to learn more about

1091 Lampp Drive, Englewood, FL 34223.

Contact Form

Preferred Communication Method:

Estimate Your Payment

Estimated Payment

$ 5,914.41 per month $5,059.25 Principal & Interest $417.67 Property Tax $437.50 Homeowner's Insurance

Change Payment Information

%
years/fixed
yearly
yearly (est.)
(Payments are an estimate and may vary by lender)

About this area

Florida/Englewood
Englewood

View Listings

About Englewood

Englewood is located south of Sarasota, and north of Venice. This community offers a wide variety of home styles and price ranges. It’s tucked away, yet still provides easy access to the arts and cultural amenities that make this area so popular. Nature is abundant, and with a strong school system, it’s also great place for families. One of the highlights in Englewood is Manasota Key Road. It boasts luxurious properties that are Gulf- front on one side and bay-front on the other.


Learn More About Living in Englewood, Florida

About this community

Disclaimer: All information deemed reliable but not guaranteed. All properties are subject to prior sale, change or withdrawal. Neither listing broker(s) or information provider(s) shall be responsible for any typographical errors, misinformation, misprints and shall be held totally harmless. Listing(s) information is provided for consumers personal, non-commercial use and may not be used for any purpose other than to identify prospective properties consumers may be interested in purchasing. Information on this site was last updated 04/21/2026. The listing information on this page last changed on 04/21/2026. The data relating to real estate for sale on this website comes in part from the Internet Data Exchange program of Delta Media Group MLS (last updated Tue 04/21/2026 6:35:27 AM EST) or Stellar MLS (last updated Tue 04/21/2026 1:58:51 AM EST). Real estate listings held by brokerage firms other than Wagner Realty may be marked with the Internet Data Exchange logo and detailed information about those properties will include the name of the listing broker(s) when required by the MLS. All rights reserved.

Listing data and photos distributed by MLSGRID
Member Participants (and their affiliated licensees, if applicable) shall indicate on their websites that IDX information is provided exclusively for consumers’ personal non-commercial use, that it may not be used for any purpose other than to identify prospective properties consumers may be interested in purchasing, that the data is deemed reliable but is not guaranteed by MLS GRID, and that the use of the MLS GRID Data may be subject to an end user license agreement prescribed by the Member Participant’s applicable MLS if any and as amended from time to time. MLS GRID may, at its discretion, require use of other disclaimers as necessary to protect Member Participant, and/or their MLS from liability.
Based on information submitted to the MLS GRID. All data is obtained from various sources and may not have been verified by broker or MLS GRID. Supplied Open House Information is subject to change without notice. All information should be independently reviewed and verified for accuracy. Properties may or may not be listed by the office/agent presenting the information.



Privacy Policy / DMCA Notice / ADA Accessibility

Login to My Homefinder

Pixel